
910 McGill Lane Princeton, TX 75407
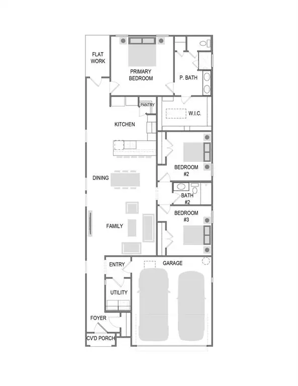
3 Beds
2 Baths
1,657 SqFt
UPDATED:
Key Details
Property Type Single Family Home
Sub Type Single Family Residence
Listing Status Pending
Purchase Type For Sale
Square Footage 1,657 sqft
Subdivision Lowry Trails
MLS Listing ID 21172169
Style Contemporary/Modern,Craftsman
Bedrooms 3
Full Baths 2
HOA Fees $650/ann
HOA Y/N Mandatory
Year Built 2025
Lot Size 4,599 Sqft
Acres 0.1056
Lot Dimensions 40x115
Property Sub-Type Single Family Residence
Property Description
Location
State TX
County Collin
Community Playground
Direction Take Sam Rayburn Tollway to McKinney, head east on Sam Rayburn Tollway (TX-121). Continue onto TX-399 Spur East, and then proceed onto South McDonald Street. From there, turn right onto Harry McKillop Boulevard,Old Mill Road, and continue to follow Harry McKillop Boulevard. Next, continue onto FM546
Rooms
Dining Room 1
Interior
Interior Features Cable TV Available, High Speed Internet Available, Open Floorplan, Pantry, Walk-In Closet(s)
Heating Central
Cooling Ceiling Fan(s), Central Air
Flooring Carpet, Luxury Vinyl Plank, Tile
Appliance Dishwasher, Disposal, Microwave, Tankless Water Heater
Heat Source Central
Laundry Electric Dryer Hookup, Utility Room, Full Size W/D Area, Washer Hookup
Exterior
Exterior Feature Rain Gutters, Lighting, Private Yard
Garage Spaces 2.0
Fence Back Yard, Wood
Community Features Playground
Utilities Available City Sewer, City Water
Roof Type Composition
Total Parking Spaces 2
Garage Yes
Building
Story One
Foundation Slab
Level or Stories One
Structure Type Brick,Rock/Stone,Siding
Schools
Elementary Schools Harper
Middle Schools Mattei
High Schools Lovelady
School District Princeton Isd
Others
Virtual Tour https://my.matterport.com/show/?m=TNymCW8ywdE








